Piso en Cortes-Huertas Madrid

Cortes-Huertas - Calle de Echegaray
4.5 · Excelente ubicación
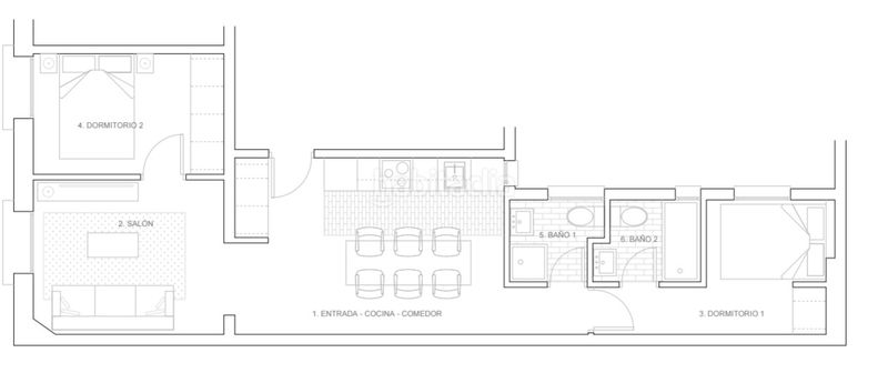
2 habitaciones
2 baños
70 m²

Acerca de esta propiedad

Pegado a la Plaza de Canalejas, en uno de los puntos más cotizados y transformados del centro de Madrid, se esconde una vivienda que no solo cumple, sino que sorprende. Aquí, donde la ciudad ha apostado por la modernización de alto nivel —con ventas millonarias que superan los 30.000 €/m² en propiedades de referencia—, aparece este piso de diseño con carácter, personalidad y una ubicación sencillamente insuperable. A apenas dos minutos andando del Hotel Palace, a otros dos de la Puerta del Sol, y literalmente al lado del nuevo epicentro de lujo madrileño, esta casa es el equilibrio perfecto entre tradición arquitectónica y estilo contemporáneo. Está situada en una finca señorial de 1900, con todo el encanto de época que solo el Madrid histórico puede ofrecer, pero ha sido intervenida con un gusto exquisito y materiales de máxima calidad. Desde que cruzas la puerta, la sensación es clara: aquí se ha cuidado cada detalle. El salón-comedor, amplio y luminoso, te recibe con una cocina abierta hecha a medida, con muebles en un verde sofisticado que se integra a la perfección con los panelados de madera natural. Un diseño pensado al milímetro para quien valora los espacios únicos. Y sí, es exterior: la luz entra a raudales por sus balcones, reforzando esa atmósfera elegante y acogedora que sólo las casas bien pensadas transmiten. Los 70 metros cuadrados, según catastro, están repartidos con inteligencia y sin renuncias. La vivienda cuenta con dos dormitorios dobles, uno de ellos en suite, con baño privado. Ambos baños (el en suite y el general) son completos, con acabados de calidad y diseño limpio. Además, todas las estancias tienen ventana, algo cada vez más difícil de encontrar en viviendas del centro histórico. El dormitorio principal también es exterior, con armario empotrado y balcón, manteniendo esa conexión visual con el Madrid más castizo, pero con todo el confort de hoy: suelos de terrazo de alta gama, ventanas con rotura de puente térmico y una climatización cuidada para vivir bien durante todo el año. Y aunque el interior es de esos que enamoran a primera vista, lo que convierte esta casa en una oportunidad única es su enclave. Estás a escasos pasos del epicentro económico y cultural del nuevo Madrid. La reforma integral de la Plaza de Canalejas y el desembarco de grandes marcas de lujo han transformado esta zona en una de las más demandadas y exclusivas de la capital. Y lo tienes todo: historia, arte, transporte, gastronomía, vida de barrio y vida cosmopolita en una misma dirección. Comprar aquí no es solo adquirir un inmueble, es asegurarte una pieza del Madrid que viene. Uno que respeta sus raíces, pero que mira de frente al futuro con propuestas de alto nivel. Es tener a la vuelta de la esquina teatros, museos, tiendas únicas, restaurantes con estrella y, sobre todo, el privilegio de vivir donde otros sueñan con pasar sus vacaciones. En definitiva, una vivienda que reúne lo que todos buscan pero muy pocos encuentran: ubicación icónica, diseño cuidado, calidad en cada rincón y un entorno que no solo se vive… se presume.

549.000€ 7.843€/m²
4.5 · 23 reseñas

¿Interesado en esta propiedad?

Tu información está protegida y solo se compartirá con el propietario