Piso oportunidad de inversión a 300 metros de tirso de molina en Madrid

Calle del Amparo, Lavapiés, Embajadores, Centro, Madrid, Community of Madrid, 28012, Spain
4.5 · Excelente ubicación
1 habitaciones
1 baños
42 m²

Acerca de esta propiedad

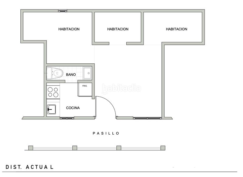
Trade Homes presenta en exclusiva esta vivienda en primera planta a patio en una encantadora corrala tradicional, en pleno centro de Madrid, a solo 300 metros de Tirso de Molina. La propiedad destaca por su amplio patio, un elemento poco habitual en la zona que aporta excelente luz natural, silencio y una agradable sensación de amplitud, convirtiéndose en un valor diferencial clave para quienes buscan vivir en el centro sin renunciar a tranquilidad y confort. La vivienda ofrece una distribución con gran potencial, con posibilidad de dejar el espacio completamente diáfano y diseñar una redistribución a medida. Se trata de un inmueble con alto recorrido de inversión, ideal para reforma y revalorización. Se entrega con proyecto de arquitectura y presupuesto de reforma, facilitando iniciar la obra con una planificación clara, optimizada y orientada a maximizar el resultado final. Ubicación estratégica en zona consolidada, con todos los servicios, comercios, transporte y vida cultural a pocos pasos. Para más información o concertar visita, contacta con Trade Homes. Aviso de privacidad: De conformidad con la normativa vigente en protección de datos, la información facilitada será tratada de forma confidencial y utilizada únicamente para gestionar solicitudes de información y coordinar visitas. No se cederán datos a terceros salvo obligación legal. Nota sobre imágenes: Las imágenes publicadas son renders e infografías orientativas de posibles propuestas de reforma y decoración. No constituyen documento contractual ni garantizan resultados finales, que pueden variar según proyecto definitivo, calidades y ejecución.

247.000€ 5.881€/m²
4.5 · 23 reseñas

¿Interesado en esta propiedad?

Tu información está protegida y solo se compartirá con el propietario